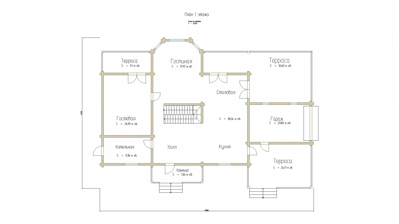
Проект "Проект Д 252 "

Площадь: 351 м2